St. Johannes Stift Zizers

St. Johannes Stift

La parte orientale dell’edificio St. Johannes Stift a Zizers è annoverata tra gli edifici più degni di essere protetti nel paese di Zizers. La nostra ditta ha eseguito il rilievo completo dell’edificio tramite scanner terrestre 3D e processato i dati per la restituzione completa dei dati rilevati e la produzione dei piani (planimetria, viste e sezioni) in scala 1:50. Dal rilievo è stato possibile estrarre e riprodurre nelle viste i dettagli completi come stuccature, pannelli, l’altare della cappella… etc..

Servizi

Competenze

SWISS BIM Modell albergo Sorell Seidenhof

Sorell Hotels

L’albergo nel centro di Zurigo è stato rilevato completamente all’esterno e al suo interno tramite scanner terrestre 3D. Dalla nuvola di punti così ottenuta è stato creato in Autodesk Revit un modello BIM secondo LOD (Level of Development) 200. La restituzione del modello nel formato ifc 2×3 è servita agli architetti per l’implementazione nel loro software specifico.
L’estrazione delle linee di discontinuità dalla nuvola di punti 3D e la costruzione del modello sono eseguite interamente da nostri collaboratori in sede. Così facendo possiamo garantire la qualità dei dati processati e una corretta attribuzione dei singoli oggetti.
Un’accurata base BIM di progetto è indispensabile per le fasi successive di progettazione.

Servizi

Competenze

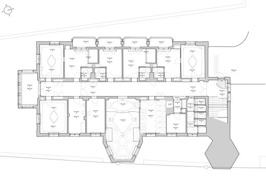
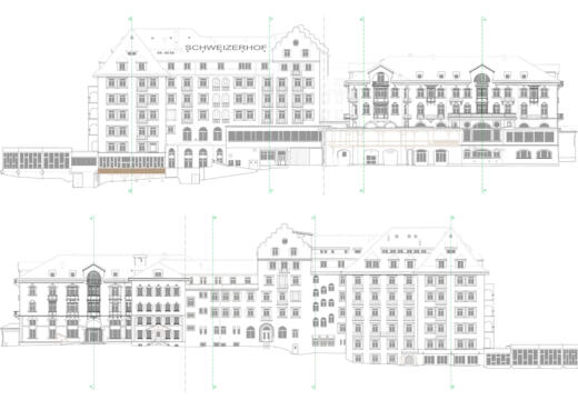
Albergo Schweizerhof

Fanzun SA

L’albergo è stato rilevato completamente tramite scanner terrestre 3D. A tale scopo sono state rilevate e processate ben 2800 stazioni/punti di posizionamento del Laserscanner restituendo una nuvola di punti 3D georeferenziata del complesso alberghiero. Dalla nuvola di punti sono stati estratti 30 piani con viste e sezioni in scala 1:50.

Servizi

Competenze

Chiesa del monastero di Pfäfers

Parrocchia Pfäfers

La Donatsch + Partner SA è stata incarica di documentare in modo dettagliato ed efficiente la chiesa del Monastero benedettino di Pfäfers. A tale scopo abbiamo combinato l’impiego per i rilievi di uno scanner terrestre 3D con un drone. Con il drone abbiamo rilevato e documentato le facciate della chiesa. Mentre gli interni della stessa sono stati rilevati e documentati con lo scanner terrestre 3D a colori. Da questi rilievi sono di seguito stati processati i dati e creato delle basi CAD 2D quali per esempio la planimetria e delle ortofoto in scala geometricamente corretta degli affreschi delle pareti e del soffitto.

Servizi

Competenze

Albergo Krone Grüsch

Privato

La nostra ditta ha potuto rilevare con lo scanner terrestre 3D, sia all’interno sia all’esterno, il bellissimo edifico nel centro di Grüsch con i suoi dettagli pregiati. Dalle scansioni abbiamo in seguito estratto e restituito i piani dettagliati dell’edificio quali planimetrie, sezioni e viste in scala 1:50.

Servizi

Competenze

Alte Post Schuders

architetta schiers sa

La bella osteria „alte Post“ a Schuders è riconvertita a un nuovo scopo. A questo proposito abbiamo creato partendo dal rilievo con lo scanner terrestre 3D tutta la documentazione dell’edificio. Usando lo scanner terrestre per i rilievi sul campo è stato possibile eseguire tutti i rilievi durante il normale esercizio dell’osteria senza interferire con lo stesso.

Servizi

Competenze

Jurastrasse 58 Berna

KASTKAEPPELI Architekten

La piccola casa a graticcio di proprietà della Citta di Berna (Immobilien Stadt Bern, Bundesgasse 33, 3011 Bern) risalente all’anno 1870 deve essere ristrutturata. A questo scopo la committenza ha richiesto una documentazione completa dell’edificio. La nostra ditta è stata incaricata per la restituzione completa dei piani dell’edificio quali planimetrie, sezioni, viste e degli spazi adiacenti. Le informazioni per il modello del terreno sono state estratte direttamente dai rilievi con lo scanner terrestre 3D delle facciate.

Servizi

Competenze

Landgasthof Innerschweiz

Privato

Per lo studio di un nuovo utilizzo di quest’edificio storico e della sua riconversione i clienti avevano bisogno di una misurazione dell’edificio completa. Oltre all’edificio storico è stato rilevato anche il fienile adiacente nella parte meridionale. Con l’impiego dello scanner terrestre 3D è stato possibile creare in breve tempo una documentazione completa in scala 1:100 dell’intera area edificata.

Servizi

Competenze

Centrale atomica Gösgen

Andritz Hydro

Per ottimizzare la pompa di raffreddamento ad acqua è stato necessario l’acquisizione tramite scanner terrestre di una nuvola di punti precisa della spirale. Con lo scanner Faro Photon è stato possibile ottenere die risultati stupefacenti. La nuvola di punti è di seguito stata impiegata dal nostro cliente per eseguire dei calcoli idraulici.

Servizi

Competenze

Centro commerciale

Maus Frères S.A.

Il rilievo completo del centro commerciale è avvenuto durante il regolare esercizio dello stesso. Il rilievo degli spazi commerciali è stato eseguito di notte durante le chiusure regolari degli esercizi. Gli spazi dei magazzini sono stati rilevati durante il giorno. Per eseguire il rilievo in tempi brevi sono stati impiegati due scanner Faro Focus.
La restituzione completa dei dati rilevati è avvenuta con la produzione dei piani (planimetria, viste e sezioni) in scala 1:50 secondo la norma SIA 400. Dallo stesso rilievo è stato processato e restituito anche il rilievo del terreno 3D degli spazi circostanti al centro commerciale.
Le componenti principali dell’impiantistica dell’edificio (impianto sprinkler antincendio, ventilazione, riscaldamento, impianto elettrico) sono integrate nelle varie planimetrie

Servizi

Competenze

Mulino Grüsch

Baugesellschaft Mühle

Un bellissimo, vecchio sedime industriale nel centro di Grüsch. La brillante idea di una riconversione a spazio abitativo ci ha da subito convinti. La nostra ditta ha eseguito il rilievo completo del sedime industriale tramite scanner terrestre 3D. Di seguito i dati sono stati processati per la restituzione completa dei dati rilevati e la produzione dei piani (planimetria, viste e sezioni). Gli Architetti Barkow e Leibinger di Berlin hanno inoltre molto apprezzato il nostro servizio online Donatsch WebShare per la consultazione delle singole scansioni.

Servizi

Competenze

Capannone/officina Coira

Ritter Schumacher SA

Per pianificare un nuovo involucro dell’edificio con isolamento termico efficiente l’architetto necessitava tutte le viste del capannone. Inoltre nelle viste sono stati evidenziati tutti gli elementi portanti. Per ottimizzare la gestione dell’immobile, contemporaneamente alle viste sono state estratte pure le planimetrie attuali dei due piani del capannone.
Il rilievo completo del capannone è avvenuto durante il regolare esercizio tramite scanner terrestre 3D.

Servizi

Competenze

Edificio storico Coira

Giubbini Architekten

Il rilievo completo dell’edificio e degli spazi adiacenti è stato realizzato durante un’unica giornata. In seguito dalla nuvola di punti sono state estratte tutte le planimetrie, le viste, le sezioni e il modello 3D del terreno.

Servizi

Competenze